拿倾斜桩搞基坑支护注定是个小众化的选择
倾斜桩是个啥
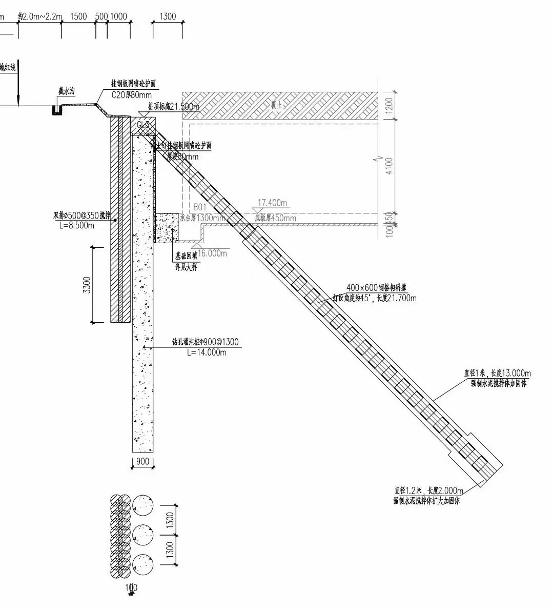
倾斜桩就是斜桩、不竖直的桩,人为故意做成倾斜的桩。这种做法,在水工构筑物、高耸结构的基础中比较多见。

也就是,这个倾斜桩就是字面意思。在水工建筑业内,多使用斜桩这个说法,倾斜桩这个说法用得比较少。
倾斜桩支护又是个啥
还是字面意思,倾斜桩支护就是拿倾斜桩搞基坑支护(基坑围护),把这种东西作为基坑支护结构来使用。
这就是倾斜桩支护。
国内第1本倾斜桩支护的技术标准——《天津市基坑倾斜桩无支撑支护技术规程》,有个适用条件表格, 罗列了几种不同形式的倾斜桩支护结构。

这个表格里边的倾斜桩,第一眼看上去跟斜支撑(斜抛撑)没有区别,第二眼看上去……还是没有什么区别。

倾斜桩支护的优势
优势有几个,不过,可能不是很明显。
比如,
- 便宜,比
双排桩便宜; - 工期短,比
斜支撑工期短; - 施工简便,比
斜支撑更简便; - 没有内支撑,比有支撑的更利于土方开挖及土建施工;
但是,如果拿它和超前斜支撑(超前斜抛撑)相比呢?

那么,工期优势就没有了,因为,超前斜支撑的施工窗口跟倾斜桩是一样的,要么是开挖前,
要么是挖到冠梁位置再施工。相对而言,超前斜支撑的施工时机更加灵活。
另外,施工简便的优势也没有了,因为,超前斜支撑同样不需要盆式开挖,不必在基坑周围留土。
倾斜桩支护的劣势
要说劣势,那就比较明显了。
比如,
- 占用空间大,这一点跟斜支撑是类似的,稍微会比斜支撑好一点点;
- 需要特殊机械设备,这个短期内是没办法解决的;
- 价格优势不明显,和
超前斜支撑相比,各方面都没有明显优势,特殊工艺和设备可能导致价格甚至可能更贵;
结论
总的来说,在大多数项目里边,搞倾斜桩支护,还不如搞超前斜支撑。超前斜支撑工艺更简单、成熟,
没有“新”风险,施工窗口更加灵活,更值得尝试。
好的点子不一定都是好的技术。为了无支撑,去造一个“新”工艺(并不新,其他行业很常见), 用来写文章、报材料、评奖自然是很好的,想要真正推广应用注定是很困难的。不排除一种可能, 就是那些所谓的应用,也是拿去写文章、报材料、评奖的。😂
文章作者 Jack Hsu
上次更新 2023-11-24
许可协议 Copyright © Jack Hsu. All Rights Reserved.